Home / Rent or Buy / Oteley Bungalow, Oteley Road, Shrewsbury

Oteley Bungalow, Oteley Road, Shrewsbury

Overview: Houses Sold

Purchase Price:
£350,000

Key Features

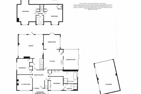
  • Detached Dormer bungalow residence
  • Four bedrooms, three bath/shower rooms
  • Wrap around gardens and parking
  • Convenient location close to amenities

Description

This generously proportioned Dormer bungalow offers scope as a refurbishment project or development opportunity for a small developer.

Set in a generous plot, Oteley Bungalow is a detached Dormer bungalow in need of complete modernisation and improvement. This spacious accommodation is very much capable of an attractive layout and benefits from large gardens.

The property is conveniently situated on the outskirts of Shrewsbury town centre, close to excellent local amenities, including Meole Brace retail park, good primary and secondary schools and within easy reach of the Shrewsbury by-pass with M54 motorway link

Location

Oteley Road Bungalow, Oteley Road, Shrewsbury, SY2 6QJ

what3words: ///funded.last.known

Up